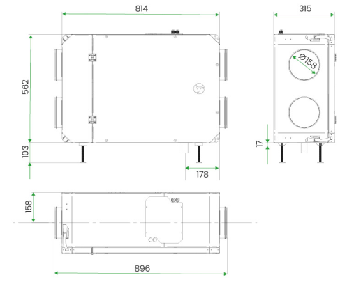
Centrala wentylacyjna REQNET BASIC H.250 HRV Rekuperator REQNET Basic H.250 HRV to najbardziej kompaktowy model w ofercie REQNET , zaprojektowany do efektywnej, zdrowej i energooszczędnej wentylacji w mieszkaniach i niewielkich domach. Urządzenie oferuje wyjątkową wartość dzięki połączeniu wysokiej jakości wykonania, nowoczesnych komponentów oraz przemyślanej konstrukcji, a także bardzo atrakcyjnej ceny. Jego niewielkie rozmiary oraz łatwość montażu – zarówno na ścianie, jak i na podłodze – sprawiają, że jest doskonałym wyborem do różnych zastosowań mieszkaniowych, gwarantując komfortowe warunki przez cały rok.
Rekuperator Basic H.250 HRV posiada wytrzymałą obudowę wykonaną z wysokogatunkowej stali nierdzewnej (inox), co zapewnia wieloletnią trwałość i niezawodność działania. Wnętrze urządzenia wypełnione jest pianką zamkniętokomórkową, która zapewnia doskonałą izolację termiczną i akustyczną, eliminując straty ciepła. Dzięki kompaktowej konstrukcji, rekuperator zajmuje niewiele miejsca i może być łatwo zamontowany na ścianie lub podłodze, co zwiększa jego uniwersalność.
Regulator naścienny i automatyka sterująca
REQNET Basic H.250 HRV wyposażony jest w łatwy w obsłudze regulator naścienny, który umożliwia płynną regulację wydajności w zakresie od 20% do 100%. Regulator posiada podświetlany pierścień, który sygnalizuje aktualny stan pracy urządzenia oraz informuje o konieczności wymiany filtrów. Dodatkowo, urządzenie może być automatycznie sterowane na podstawie jakości powietrza w domu dzięki opcjonalnemu modułowi CO2/Higro, co zapewnia jeszcze większą wygodę i efektywność użytkowania.
Nowej generacji wentylatory EC
Wyposażony w dwa energooszczędne wentylatory prądu stałego EC, rekuperator gwarantuje wysoką wydajność przy minimalnym zużyciu energii (maksymalnie 125 W przy pełnej wydajności). Nowoczesne łopaty wirników zapewniają optymalny przepływ powietrza przy niskim poziomie hałasu, co poprawia komfort użytkowania w pomieszczeniach mieszkalnych.
Wymiennik ciepła
Rekuperator Basic H.250 HRV wyposażony jest w przeciwprądowy wymiennik ciepła Core, wykonany z tworzywa sztucznego, który zapewnia wysoki poziom odzysku energii – do 95%. Dzięki zaawansowanej konstrukcji, wymiennik skutecznie przekazuje ciepło z powietrza wywiewanego do nawiewanego, bez mieszania się strumieni powietrza. To rozwiązanie gwarantuje optymalny komfort termiczny w budynku, jednocześnie minimalizując koszty ogrzewania i chłodzenia, co czyni go doskonałym wyborem dla energooszczędnych domów i mieszkań.
Zintegrowany system przeciwzamrożeniowy i elektroniczny bypass
Rekuperator REQNET Basic H.250 HRV wyposażony jest w zaawansowany system przeciwzamrożeniowy z płynnie sterowaną nagrzewnicą wstępną PTC, która chroni wymiennik ciepła przed zamarzaniem w niskich temperaturach zewnętrznych, jednocześnie minimalizując zużycie energii. Elektroniczny, automatycznie sterowany bypass optymalizuje przepływ powietrza, umożliwiając funkcję free-coolingu w cieplejszych miesiącach, co zwiększa efektywność energetyczną systemu.
Opcjonalny moduł CO2/Higro
Dla bardziej zaawansowanej kontroli jakości powietrza, rekuperator może być wyposażony w moduł CO2/Higro, który monitoruje stężenie dwutlenku węgla i wilgotność w pomieszczeniach. Dzięki temu urządzenie automatycznie dostosowuje swoją pracę do bieżących warunków, co pozwala na optymalne wykorzystanie energii i utrzymanie idealnych warunków wewnętrznych.
Główne cechy rekuperatora BASIC H.250 HRV:
Wysoka sprawność odzysku ciepła do 95% dzięki przeciwprądowemu wymiennikowi ciepła HRV.
Nowej generacji, energooszczędne wentylatory prądu stałego EC, zapewniające wysoką wydajność przy niskim zużyciu energii.
Brak wewnętrznych mostków cieplnych dzięki zaawansowanej izolacji z pianki PE.
Wbudowana, płynnie sterowana nagrzewnica wstępna typu PTC.
Trwała obudowa z wysokogatunkowej stali nierdzewnej (inox).
Kompaktowy rozmiar i łatwość montażu na ścianie lub podłodze.
Skuteczna filtracja powietrza dzięki filtrom klasy M5 (ePM10 75%) i dużej powierzchni filtracyjnej.
Możliwość automatycznego sterowania na podstawie jakości powietrza dzięki modułowi CO2/Higro.
Elektroniczny bypass dla optymalnego zarządzania temperaturą.
Dostępność w wersji prawej i lewej.
Charakterystyka przepływowa: Producent zastrzega sobie prawo do wprowadzania zmian technicznych opisywanych produktów.
Kolory produktów mogą nieznacznie różnić się od tych widocznych na zdjęciach, co wynika m.in. z ustawień monitora. Dodatkowo rzeczywisty wygląd produktu może delikatnie odbiegać od prezentowanego na zdjęciach z uwagi na różnice w partiach produkcyjnych lub drobne zmiany w procesie produkcji.